Страница 1 из 1
Часто задаваемые вопросы по расчету категорий
Добавлено: 23 июн 2016, 10:35
Сергей
Вопрос по расчету категорий:
В программе необходимо указать длину и ширину помещения, а что делать, если помещение имеет неправильную форму?
Ответ:
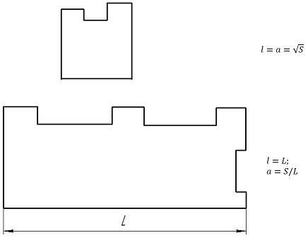
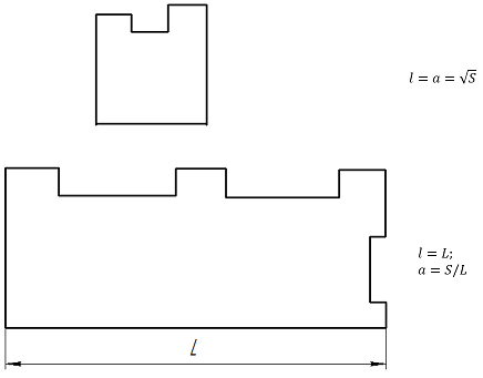
Параметр "длина" необходим для расчета скорости воздушного потока в помещении.
Если помещение имеет неправильную форму, то длину и ширину нужно подобрать такие, чтобы расчетная площадь была равна площади помещения. При этом для повышения точности расчета желательно, чтобы длина была "характерной" для данного помещения. Например, если форма помещения близка к квадрату - длину и ширину можно указать равными квадратному корню от площади; если помещение почти прямоугольное, но с некоторыми дополнительными объемами - длину можно указать истинную, а ширину вычислить как S/L:

- длина.png (5.36 КБ) 113512 просмотров
Re: Часто задаваемые вопросы по расчету категорий
Добавлено: 21 июл 2016, 16:58
FireCat
Вопрос: В программе необходимо задать объем аппарата, а если у меня не аппарат, а просто канистра бензина/бочка спирта/бутылка ацетона?
Ответ: "Аппарат" в программе - понятие условное. И канистра, и бочка, и бутылка для программы являются аппаратом. Просто укажите объем емкости.
Вопрос: Как задать параметр "Отключение трубопроводов", если у меня нет трубопроводов?
Ответ: Если трубопроводов нет, то, какое бы значение вы бы ни задали, на расчет это не повлияет.
Вопрос: Как посчитать отдельно трубопровод, без аппарата?
Ответ: Задать объем аппарата равным нулю - тогда аппарат на расчет не повлияет.
Вопрос: Как посчитать категорию для склада, в котором хранится водка?
Ответ: Расчетное избыточное давление dР для гибридных смесей, содержащих горючие газы (пары) и пыли, определяется по формуле dP = dP1 + dP2 = dP воды + dP спирта
dP воды = 0
То есть в качестве пожарной нагрузки нужно выбрать спирт, но его количество принять 40% от объема водки.
Вопрос: На участке нагрузки находится 10 бутылей спирта объемом 2 литра. Как посчитать категорию?
Ответ: Действительно, при определении расчетного избыточного давления взрыва учитывается разгерметизация одной емкости, а при расчете удельной пожарной нагрузки необходимо учесть все горючие вещества на участке. Чтобы все посчиталось корректно, нужно создать на участке:
1. Жидкую нагрузку объемом 2 литра, указать все необходимые параметры. Эта нагрузка будет использоваться для определения избыточного давления взрыва при разгерметизации одной емкости (если присутствуют емкости разных размеров, необходимо выбрать наибольшую).
2. Жидкую нагрузку объемом 2*9 = 18 литров (т.е. суммарный объем всех остальных емкостей). Установить температуру ниже температуры вспышки. Тогда данная нагрузка не будет участвовать в определении избыточного давления, но будет учтена при расчете удельной пожарной нагрузки.
Часто задаваемые вопросы по расчету категорий
Добавлено: 15 дек 2016, 13:56
Ирина
Здравствуйте!
Возник вопрос следующего характера.
1. Согласно положениям приложения Б СП 12, в помещениях категории В1-В4 определяются с учетом величины Н- минимального расстояния от поверхности пожарной нагрузки до нижнего пояса ферм перекрытия (покрытия), м.
Значения предельных расстояний, приведенные в таблице Б.2 СП 12, рекомендуются при условии, если Н>11 м; если H<11 м, то предельное расстояние определяется как ,l=lпр+(11-Н).
Так вот, уважаемые коллеги, как поступить, если расчет категории ведется по помещению, не имеющему балочного перекрытия и соответственно ферм перекрытия.
Существующее перекрытие - сборные железобетонные плиты либо монолит. Какая формула будет в этом случае, либо условия допущения выполнения расчета?
2. Площадь размещения пожарной нагрузки может быть и менее 10 м2. В этом случае мы по наихудшему сценарию все-равно принимаем, что пожар произошел на площади как минимум 10 м2, т.к. согласно методике СП12 площадь размещения пожарной нагрузки не менее 10 м2 должна быть?
Re: Часто задаваемые вопросы по расчету категорий
Добавлено: 15 дек 2016, 15:06
Сергей
Здравствуйте, Ирина.
По первому вопросу "Какая формула будет в этом случае.." - формула та же, берите H равным расстоянию до этих плит.
По второму вопросу.. собственно не понял вопроса.
"...по наихудшему сценарию все-равно принимаем, что пожар произошел на площади" - при расчете категории В1-В4 никакие сценарии не рассматриваются, пожар тоже не моделируется, зачем нужна площадь пожара не понял.
Если Вы про формулу удельной пожарной нагрузки (Б.2) - просто берите S = 10 м.кв. (в любом случае - не менее 10 написано).
Уточните, пожалуйста, вопрос.
Re: Часто задаваемые вопросы по расчету категорий
Добавлено: 06 май 2017, 06:46
Сергей
Вопрос:
Добрый день, Уважаемые Коллеги! Прошу разъяснить, по какой методике в Вашем ПО производится определение класса зоны по ПУЭ и ФЗ-123.
Отнесение помещений №1, №3 и №4 (см. приложенный файл «категорирование_1») к классу зоны В-Iа по ПУЭ и классу 2-ой по ФЗ-123 по взрывоопасности противоречат выводам и полученным расчетным данным, т.к. в этих помещениях «коэффициент Z участия в горении паров жидкости равен нулю, возникновение источника зажигания не приведет к взрыву, и расчетное давление взрыва будет равно нулю». Соответственно, в данных помещениях взрывоопасные смеси горючих газов или паров ЛВЖ с воздухом не образуются как при нормальной эксплуатации, так и в результате аварии или неисправности.
Ответ:
По определению 7.3.22 ПУЭ "Взрывоопасная зона — помещение или ограниченное пространство в помещении или наружной установке, в котором имеются или МОГУТ ОБРАЗОВАТЬСЯ взрывоопасные смеси".
7.3.41. Зоны класса В-Iа — зоны, расположенные в помещениях, в которых при нормальной эксплуатации взрывоопасные смеси горючих газов или паров ЛВЖ с воздухом не образуются, а возможны только в результате аварий или неисправностей.
Во-первых, дизельное топливо - это все-таки ЛВЖ, относить эти помещения к пожароопасному классу (П-I) было бы неправильно, там по определению должны быть ГЖ.
Во-вторых, нельзя гарантировать необразование взрывоопасной смеси при аварии. Все-таки аварии бывают разные. Авария может быть вызвана повреждением оборудования в результате, к примеру, загорания, мехнического разрушения с выделением искр, возникновением местных высоконагретых частей и т.п., что может привести к нагреву жидкости выше температуры вспышки.
Определение категории - это отдельная методика, она не связана с определением класса зоны. При определении категории сценарий развития аварии четко определен в СП 12 (разрушение оборудования - розлив жидкости - испарение - источник зажигания). А при определении класса зоны перечень возможных вариантов развития событий ничем не ораничен. Поэтому раз смесь "может образоваться" при каких-то случаях - зона взрывоопасная. А так как может образоваться только при аварии - это зона В-Iа.
Класс зоны определяется не расчетом, а аналитически. Поэтому в программе FireCategories класс зоны определяется без учета всех расчетных значений, а только по данным, указанным в параметрах "Взрывоопасная смесь", "Особые условия" и др., которые аналитически приводят к тому или иному классу.
И еще, обратите внимание на п. 7.3.38 ПУЭ "...Класс взрывоопасной зоны, в соответствии с которым производится выбор электрооборудования, определяется технологами совместно с электриками проектной или эксплуатирующей организации."
Т.е. это они решают, что может образоваться, при каких условиях и т.д.
Касаемо ФЗ, см. статью 19. Там в принципе смысл тот же: может/не может; при норм.работе / при аварии.
Вопрос: Учитываются ли при определении класса зоны по взрывоопасности система аварийной вентиляции, площадь зеркала испарения жидкости, интенсивность испарения жидкости и другие результаты расчета категории помещения по взрывопожароопасности?
Ответ:
И да, и нет.
Например, наличие вентиляции - да. Если в помещении выделяются пары ЛВЖ и вентиляции нет - класс зоны В-I, т.к. смесь образуется при нормальном режиме работы. А если есть вентиляция - В-Iа, т.к. при норм.режиме смесь не образуется, НО ПРИ АВАРИИ ВЕНТИЛЯЦИИ - может образоваться. Как уже писал выше, перечень аварий при определении класса зоны неограничен.
А вот интенсивность, площадь и др. - чаще всего не влияют на класс зоны. Например, в помещении - ЛВЖ в резервуарах с открытой поверхностью испарения. При нормальных условиях смесь образуется? Да. Зона В-I. И неважно в каком количестве, какое избыточное давление и т.д. "Образуется" - и все.
Re: Часто задаваемые вопросы по расчету категорий
Добавлено: 20 июн 2018, 12:41
Сергей
Вопрос:
Как рассчитать категорию помещения, в котором установлен 50-литровый баллон с пропаном.
Ответ:
В СП 12 не определен порядок расчета массы газа, поступающего в помещение при испарении сжиженного газа из баллона. Поэтому принимаем, что просто вся масса газа участвует в расчете. Массу газа в баллоне можно узнать у производителя/по паспорту/в интернете и т.д.
В программе масса газа вычисляется по методике СП12 - исходя из объема аппарата и давления в нем. Поэтому нужно просто подобрать один из этих параметров так, чтобы получилась нужная масса.
Например для 50-литрового баллона в одном из источников сказано, что находится 21.2 кг газа. Создаем в помещении "Газовую нагрузку" с пропаном. Если свойство "Давление" оставить как есть, а объем аппарата указать 13.06 м3, то в результате расчета масса газа получится как раз 21.2 кг (подобрать объем аппарата можно выполнив один расчет с любым объемом и решив пропорцию).
Далее расчет будет выполняться как обычно (с учетом вентиляции, других нагрузок и т.д.).
Просто в получившемся отчете нужно будет в разделе "Определение массы газа, вышедшего из аппарата при аварии" самостоятельно описать как вы определили массу газа в баллоне, и что вся эта масса выходит в помещение при аварии.
Re: Часто задаваемые вопросы по расчету категорий
Добавлено: 30 авг 2018, 16:13
FireCat
Вопрос: Для некоторых веществ в базе данных заданы не все параметры, почему? И как выполнить расчет с этим веществом?
Ответ: К сожалению, не для всех веществ удается найти все необходимые параметры, поэтому некоторые вещества в базе данных присутствуют с неполными данными. Например, для многих пылей отсутствует массовая скорость выгорания. Данных хватает для выполнения расчета на категорию Б, однако если доходит до проверки на категории В1-В4, данных оказывается недостаточно.
В таком случае можно копировать вещество, для которого недостаточно данных, и задать недостающие данные.
Re: Часто задаваемые вопросы по расчету категорий
Добавлено: 28 фев 2020, 04:59
FireCat
Вопрос: Как использовать добавленные в базу данных вещества на другом компьютере?
Ответ: Созданные пользователем вещества сохраняются в отдельный файл базы CategoriesUser.db, который находится в папке %appdata%/Categories/db. Чтобы перенести пользовательскую базу данных с одного компьютера на другой, необходимо скопировать данный файл из указанной папки исходного компьютера и вставить его в указанную папку второго компьютера.